MAISON B
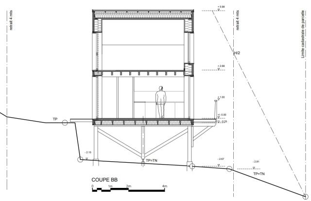
Construction d'une petite maison en paille, en terre et en bois, suspendue entre les 2 terrasses naturelles du terrain.
Projet compact et économe, entre une tiny house et une maison standard.
Projet compact et économe, entre une tiny house et une maison standard.
- Petite maison suspendue entre 2 terrasses naturelles
- Aouste-sur-Sye (26)
- Ossature bois, bottes de paille, terre crue
- 2024